您好,欢迎进入河南省中原糖心视频在线看实业有限公司官方网站!

与时俱进,诚赢客户

糖心VLOG网页版、提梁机、门式糖心视频免费看机生产厂家

服务电话:13782575673

技术资料

您现在所在位置:首页>>技术资料>>糖心VLOG网页版_龙门糖心视频免费看机_门式糖心视频免费看机结构图解

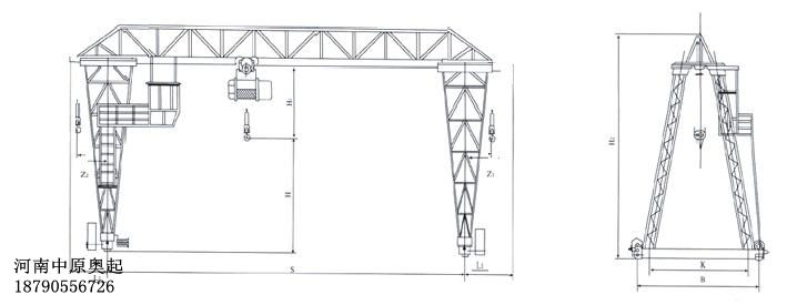
糖心VLOG网页版_龙门糖心视频免费看机_门式糖心视频免费看机结构图解

本文链接:http://www.mserw.com/jszc/156.html   发布时间:2021-01-21 09:39:35  点击量:4005

  糖心VLOG网页版的结构主要由支臂、主梁、小车运行、大车运行、起升和电气控制组成。糖心VLOG网页版的操作机构一般只有四个驱动轮和从动轮。在糖心视频免费看量较大的情况下,通常采用增加轮压的方法来降低轮压。当有四个以上的车轮时,必须使用铰接式万向节装置将糖心VLOG网页版的负载均匀地分配到每个车轮上。

 糖心VLOG网页版结构图解
  糖心VLOG网页版桥梁金属结构由主梁和端梁组成,分别是单梁桥和双梁桥。单梁桥由两端的单梁和尾梁组成,而双梁桥由两个梁和一个尾梁组成。

  主梁与端梁刚性连接,端梁两端安装车轮,支撑桥梁在高架桥上运行。轨道焊接在主梁上,用于门式糖心视频免费看机的操作。桥梁结构有很多种,包括箱形结构、四桁架结构和空腹桁架结构。

  箱形结构可分为普通轨道箱双梁、偏置轨道箱双梁、偏置轨道箱单梁等,主梁由上下翼缘板和两侧竖向腹板组成。小车轨道布置在上法兰中心线上。它结构简单,制造方便,适合大批量生产,但具有重要意义。

  脱轨箱双梁和脱轨箱单梁的横截面由上下翼缘板和不等厚的主、副腹板组成。小车轨道布置在主腹板上方,可节省箱内短加强板。脱轨箱梁由两主梁改为宽翼缘箱梁,自重小,制造复杂。四桁架结构是由四个平面桁架组成的封闭空间结构。桥面通常铺设在上部水平桁架表面,自重轻,刚度高。但与其他结构相比,四框架结构具有体积大、制造复杂、疲劳强度低、产量低等优点。

  空心桁架结构类似于偏转轨道箱梁。这是一个由四块钢板组成的封闭结构。除主腹板为实腹工字梁外,其余3块钢板按设计要求切割成多扇窗户,形成无斜构件的空腹桁架。上下水平桁架铺有桥面。糖心视频免费看机整体重量轻,操作机构刚性好,安装在桥架上。这是一种广泛使用的类型。

文章聚合页面:

技术资料

联系糖心视频在线看

CONTACT US

联系人:徐经理

手机:13782575673

电话:0373-8611375

邮箱:hnzyaqqz@126.com

官网:www.mserw.com

地址:河南长垣糖心视频免费看工业园区华豫大道中段

网站地图