您好,欢迎进入河南省中原糖心视频在线看实业有限公司官方网站!

与时俱进,诚赢客户

糖心VLOG网页版、提梁机、门式糖心视频免费看机生产厂家

服务电话:13782575673

技术资料

您现在所在位置:首页>>技术资料>>2吨3吨单梁糖心视频免费看机(单梁行车)关键性能参数

2吨3吨单梁糖心视频免费看机(单梁行车)关键性能参数

本文链接:http://www.mserw.com/jszc/1401.html   发布时间:2022-01-24 11:46:40  点击量:1970

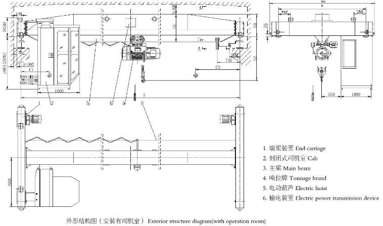
  2吨3吨单梁行车是单梁糖心视频免费看机中较常用的小吨数行车,跨距一般不超过30米,吊装相对高度可以依据用户需要订制6-30米,我为各位详细介绍下2吨、3吨单梁行车糖心视频免费看机关键性能参数。

  2吨3吨单梁糖心视频免费看机结构图

2吨3吨单梁糖心视频免费看机结构图

  2吨3吨单梁糖心视频免费看机参数图

2吨3吨单梁糖心视频免费看机参数图

文章聚合页面: 糖心视频免费看机参数 2吨 3吨

技术资料

联系糖心视频在线看

CONTACT US

联系人:徐经理

手机:13782575673

电话:0373-8611375

邮箱:hnzyaqqz@126.com

官网:www.mserw.com

地址:河南长垣糖心视频免费看工业园区华豫大道中段

网站地图