您好,欢迎进入河南省中原糖心视频在线看实业有限公司官方网站!

与时俱进,诚赢客户

糖心VLOG网页版、提梁机、门式糖心视频免费看机生产厂家

服务电话:13782575673

技术资料

您现在所在位置:首页>>技术资料>>10吨电动式单梁糖心视频免费看机主要参数输出功率

10吨电动式单梁糖心视频免费看机主要参数输出功率

本文链接:http://www.mserw.com/jszc/1398.html   发布时间:2022-01-24 11:39:06  点击量:3420

  10吨电动单梁糖心视频免费看机是在生产车间常见的一种糖心视频免费看设备吨数种类,可吊装10吨下列的吊物,可是不强烈推荐常常载满运作。跨距可依据用户需求制做7.5-31.5米。常见吊装相对高度是6-9米。我为各位详细介绍下10吨电动式单梁糖心视频免费看机主要参数输出功率:

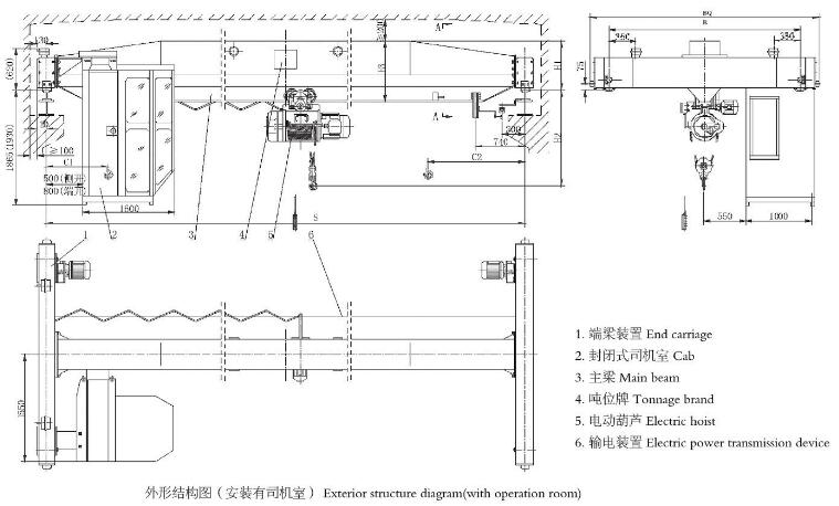
  10吨电动式单梁糖心视频免费看机结构图

10吨电动式单梁糖心视频免费看机主要参数输出功率

  10吨电动式单梁糖心视频免费看机参数图

10吨电动式单梁糖心视频免费看机参数图

文章聚合页面: 糖心视频免费看机参数 10吨

技术资料

联系糖心视频在线看

CONTACT US

联系人:徐经理

手机:13782575673

电话:0373-8611375

邮箱:hnzyaqqz@126.com

官网:www.mserw.com

地址:河南长垣糖心视频免费看工业园区华豫大道中段

网站地图