您好,欢迎进入河南省中原糖心视频在线看实业有限公司官方网站!

与时俱进,诚赢客户

糖心VLOG网页版、提梁机、门式糖心视频免费看机生产厂家

服务电话:13782575673

技术资料

您现在所在位置:首页>>技术资料>>32吨电动式单梁糖心视频免费看机性能参数

32吨电动式单梁糖心视频免费看机性能参数

本文链接:http://www.mserw.com/jszc/1395.html   发布时间:2022-01-24 11:26:43  点击量:2415

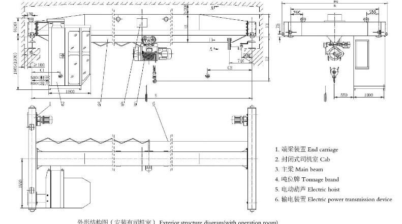
  32吨电动式单梁糖心视频免费看机就是指额定值吊重为32吨的LD型电动式单梁糖心视频免费看机。该吨数的单梁糖心视频免费看机在现实制造中运用较少,我为各位共享下32吨电动式单梁糖心视频免费看机性能参数。

  32吨电动式单梁糖心视频免费看机结构图

32吨电动式单梁糖心视频免费看机性能参数

  32吨电动式单梁糖心视频免费看机参数图

32吨电动式单梁糖心视频免费看机性能参数

文章聚合页面: 32吨 糖心视频免费看机参数

技术资料

联系糖心视频在线看

CONTACT US

联系人:徐经理

手机:13782575673

电话:0373-8611375

邮箱:hnzyaqqz@126.com

官网:www.mserw.com

地址:河南长垣糖心视频免费看工业园区华豫大道中段

网站地图